Container CAD (DWG & STEP) + technische Zeichnungen zum Download
Sie suchen Container CAD-Dateien, DWG-Zeichnungen, STEP-Modelle oder eine technische Containerzeichnung als PDF?
Hier finden Sie professionelle Planungsunterlagen für die wichtigsten ISO-Containertypen – sofort verfügbar für Planung, Bauantrag, Ausschreibung, CAD-Weiterverarbeitung und Projektentwicklung.
Seit über 15 Jahren arbeiten wir mit Seecontainern in echten Projekten. Genau aus dieser Praxis heraus stellen wir technische Unterlagen bereit, die nicht nur theoretische Maßdaten zeigen, sondern eine praxistaugliche Grundlage für die weitere Planung liefern.
- DWG, STEP und technische PDF-Zeichnungen
- für gängige ISO-Containertypen
- sofort verfügbar
- ideal für Planung, Bauantrag, Ausschreibung und CAD-/BIM-Weiterverarbeitung
Kostenlose Übersicht oder vollständiges Zeichnungspaket?
Damit Sie schnell den richtigen Einstieg finden, unterscheiden wir bewusst zwischen einer kostenlosen technischen Übersicht und dem vollständigen CAD- und Zeichnungspaket.
Die kostenlose PDF eignet sich ideal für die erste Prüfung und Orientierung. Wenn Sie mit den Daten weiterarbeiten möchten, erhalten Sie mit dem vollständigen Paket sofort nutzbare Unterlagen für Planung, CAD und Projektentwicklung.
Kostenlose technische Übersicht (PDF)
Für jeden verfügbaren Containertyp stellen wir eine vereinfachte technische Übersicht als PDF kostenlos zur Verfügung.
Diese Datei eignet sich ideal für:
- erste Maßprüfung
- Typenvergleich
- schnelle Projektabstimmung
- grobe Orientierung im frühen Planungsstadium
Nach Eintragung und Bestätigung Ihrer E-Mail-Adresse erhalten Sie die kostenfreie PDF-Zeichnung direkt zur Ansicht.
Vollständiges Zeichnungspaket – 79 € inkl. MwSt
Wenn Sie mit den Daten konkret weiterarbeiten möchten, erhalten Sie pro Containertyp ein vollständiges technisches Zeichnungspaket mit sofortigem Download nach Kauf.
Enthalten sind:
- 3D-Modell (STEP – ISO 10303)
- Technische Zeichnung (PDF – Arbeitsversion mit Maßketten und Schnitten)
- Technische Zeichnung (DWG – bearbeitbar)
- Technische Übersicht (DWG)
- Isometrische Darstellung (DWG)
Geeignet für:
- CAD-/BIM-Integration
- Projektentwicklung
- Behördenvorbereitung
- Ausschreibungen
- technische Weiterverarbeitung
Kostenlose technische Übersicht (PDF)
Ideal zur schnellen Prüfung, ob ein Containertyp grundsätzlich zu Ihrem Projekt passt.
- Abmessungen prüfen
- Typen vergleichen
- erste Projektidee abstimmen
keine CAD-Weiterverarbeitung möglich
Nach Eintragung und Bestätigung Ihrer eMail Adresse erhalten Sie sofort die kostenfreie PDF Zeichnung zur Ansicht.
Vollständiges CAD- & Zeichnungspaket (79 € inkl. MwSt)
Vollständiges Zeichnungspaket pro Containertyp – sofort verfügbar nach Kauf (Abwicklung über Digistore24):
- 3D-Modell (STEP – ISO 10303)
- Technische Zeichnung (PDF – Arbeitsversion mit Maßketten und Schnitten)
- Technische Zeichnung (DWG – bearbeitbar)
- Technische Übersicht (DWG)
- Isometrische Darstellung (DWG)
Direkt einsetzbar in gängigen CAD-/BIM-Systemen:
AutoCAD, SolidWorks, Fusion 360, Inventor, Revit (via Konvertierung), ArchiCAD u. v. m.
Warum sich das Zeichnungspaket sofort lohnt
Die Erstellung vergleichbarer Containerzeichnungen durch Architekten oder Konstrukteure kostet in der Praxis schnell mehrere hundert Euro pro Containertyp.
Mit unserem Zeichnungspaket erhalten Sie sofort verwendbare CAD-Daten (DWG), 3D-Modelle (STEP) und vollständige technische Zeichnungen – ohne eigene Nachzeichnung, Abstimmung oder Wartezeit.
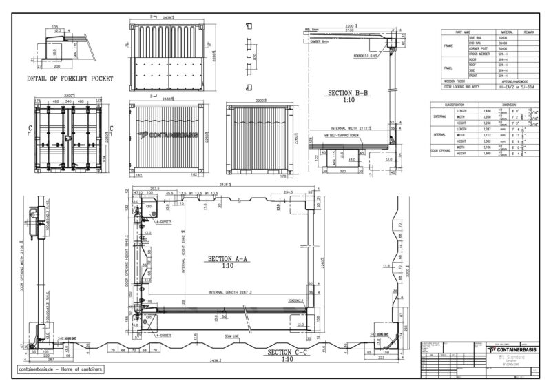
8 Fuß Container (Standard)


✔ Einmal kaufen – sofortiger Zugriff auf alle CAD-, PDF- und 3D-Daten
10 Fuß Container (Standard)


✔ Einmal kaufen – sofortiger Zugriff auf alle CAD-, PDF- und 3D-Daten
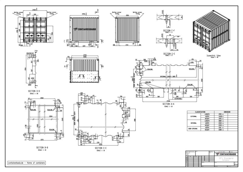
20 Fuß Container (Standard)
✔ Einmal kaufen – sofortiger Zugriff auf alle CAD-, PDF- und 3D-Daten
20 Fuß High Cube Container


✔ Einmal kaufen – sofortiger Zugriff auf alle CAD-, PDF- und 3D-Daten
20 Fuß Double Door Container


Vereinfachte technische Zeichnung (kostenfrei)
✔ Einmal kaufen – sofortiger Zugriff auf alle CAD-, PDF- und 3D-Daten
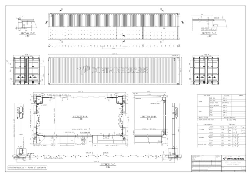
40 Fuß Container (Standard)


✔ Einmal kaufen – sofortiger Zugriff auf alle CAD-, PDF- und 3D-Daten
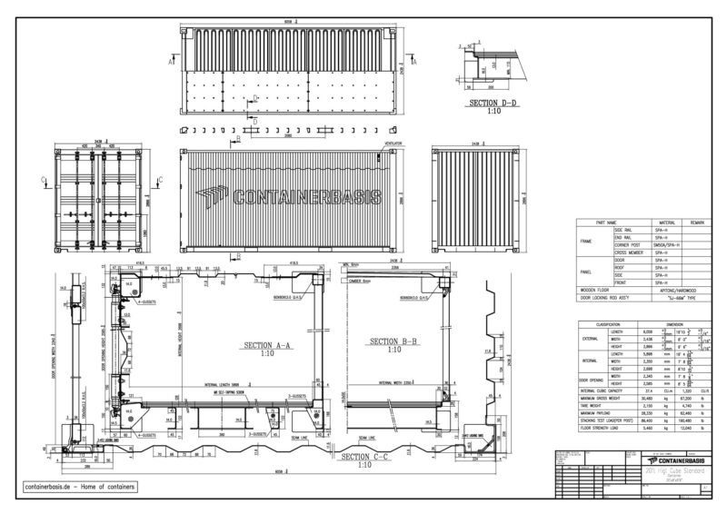
40 Fuß High Cube Container


✔ Einmal kaufen – sofortiger Zugriff auf alle CAD-, PDF- und 3D-Daten
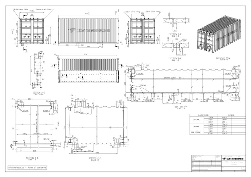
40 Fuß Double Door Container


Vereinfachte technische Zeichnung (kostenfrei)
✔ Einmal kaufen – sofortiger Zugriff auf alle CAD-, PDF- und 3D-Daten
Hinweis zur Nutzung
Die bereitgestellten technischen Zeichnungen, CAD- und 3D-Daten dienen ausschließlich als allgemeine Planungs- und Referenzgrundlage.
Abweichungen in Konstruktion, Profilierung, Sickengeometrie, Materialstärken, Bauteilabmessungen und Ausführung sind je nach Hersteller, Baujahr, Containerzustand und Containertyp möglich.
Die Daten ersetzen keine objekt-, hersteller- oder standortbezogene Planung, keine statische Berechnung und keine Prüfung durch einen bauvorlageberechtigten Planer oder Tragwerksplaner.
Eine Haftung für die tatsächliche Ausführung, Genehmigungsfähigkeit oder Eignung im Einzelfall ist ausgeschlossen.

